El Ayuntamiento de Torrevieja adjudica las obras de adaptación de dos plantas del Centro Multiusos
Estarán destinadas a un centro de formación y a un centro de ocio juvenil
La Junta de Gobierno Local del Ayuntamiento de Torrevieja ha aprobado la adjudicación de las obras de adaptación de dos plantas del Centro Multiusos para destinarlas a centro de formación y centro de ocio juvenil. Un total de 11 empresas han presentado ofertas, habiendo sido adjudicadas a la mercantil INMOURBANA SERVICIOS S.L.U. por más de 150.000 euros. El plazo de ejecución de las obras será de 3 meses, que comenzará a contar tras la firma del Acta de Replanteo.
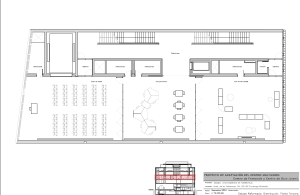
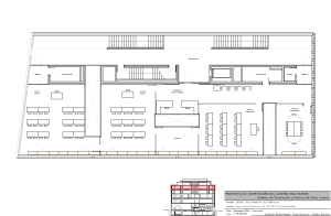
Estas obras servirán para adaptar el edificio multiusos al nuevo programa de necesidades, llevándose a cabo la modificación de la distribución de la sala existente en la planta 3ª y la planta 5ª, para adecuar sus dimensiones y características, adaptándose las instalaciones de electricidad, climatización y protección contra incendios existentes, a las necesidades del nuevo programa.
Las plantas presentarán la siguiente distribución:
-Planta 3ª: CENTRO DE OCIO JUVENIL. Salón de actos, sala polivalente, sala de actividades, almacén y cuartos de instalaciones.
-Planta 5ª: CENTRO DE FORMACIÓN. 3 aulas, una sala de profesores, una recepción con zona de espera, almacenes y cuartos de instalaciones.

